292 Erieview Drive Kingsville, Ontario N9Y 1M4
$494,900
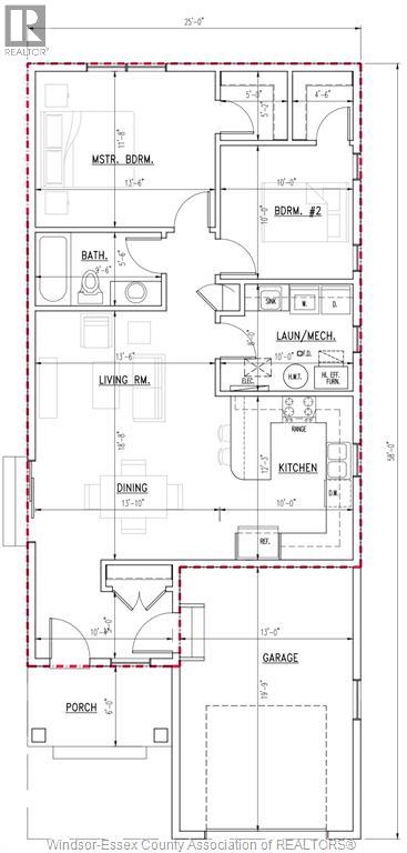
Be the First to Call This Home! This brand-new bungalow is the perfect opportunity to become a homeowner. Thoughtfully designed, it offers 2 spacious bedrooms—each with its own walk-in closet, a bright full bath, and a functional layout that combines comfort and style. The kitchen with eating area flows into the inviting living room, creating the ideal space for both everyday living and entertaining. With a main-floor laundry room and an attached single-car garage for added storage and parking, this home offers everyday convenience. Built with quality craftsmanship and backed by a Tarion New Home Warranty, this home ensures peace of mind while you enjoy the benefits of ownership. Don’t miss your chance to own a brand-new home tailored for easy, comfortable living! (id:52143)
Property Details
| MLS® Number | 25022218 |
| Property Type | Single Family |
| Features | Front Driveway |
Building
| Bathroom Total | 1 |
| Bedrooms Above Ground | 2 |
| Bedrooms Total | 2 |
| Architectural Style | Bungalow, Ranch |
| Construction Style Attachment | Detached |
| Cooling Type | Central Air Conditioning |
| Exterior Finish | Aluminum/vinyl |
| Flooring Type | Ceramic/porcelain, Other |
| Heating Fuel | Natural Gas |
| Heating Type | Forced Air, Furnace |
| Stories Total | 1 |
| Type | House |
Parking
| Attached Garage | |
| Garage | |
| Inside Entry |
Land
| Acreage | No |
| Size Irregular | 35 X 101 Ft |
| Size Total Text | 35 X 101 Ft |
| Zoning Description | Res |
Rooms
| Level | Type | Length | Width | Dimensions |
|---|---|---|---|---|
| Main Level | 4pc Bathroom | Measurements not available | ||
| Main Level | Utility Room | Measurements not available | ||
| Main Level | Laundry Room | Measurements not available | ||
| Main Level | Bedroom | Measurements not available | ||
| Main Level | Bedroom | Measurements not available | ||
| Main Level | Eating Area | Measurements not available | ||
| Main Level | Living Room | Measurements not available | ||
| Main Level | Kitchen | Measurements not available |
https://www.realtor.ca/real-estate/28805421/292-erieview-drive-kingsville
Interested?
Contact us for more information





